For sale apartment in Walchwil, Switzerland

  • Deal Type
  • For Sell
  • Тype
  • Apartment
  • Area
  • 135 m2
  • Floors
  • -
  • Rooms
  • 3
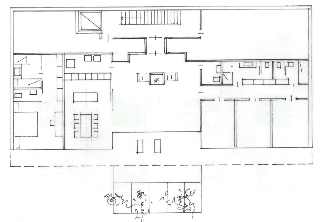
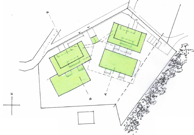
For sale apartment in Walchwil, a municipality in the Swiss canton of Zug. Located on the banks of the Zugersee. The project of the new building of 16 apartments with underground parking, with a total 4,564 m² (of which 106 m²zanimaet garden). The above design is charming and open view on Walchwil village, Lake Zug and the mountains. High privacy. In Walchwil thrive excellent chestnuts, figs, kiwi, cherries and grapes. Architectural project in accordance with the applicable building codes and regulations built and divided into sixteen apartments in 4 separate buildings. The new building will be equipped with the standard technology of the highest quality and comfort. The garden is complemented by a children's playground and is equipped with a separate living room and a barbecue for general use. The floors are made of granite slabs krupnofakturnyh, heated floors with bamboo parquet or natural stone tiles, heating is carried out with the help of Waermepumpe.12 apartments have 135 square meters - € 2,163,000.00 and 4 have 280 square meters - € 4,369,000.00. Apartments are equipped with the necessary technology and comfort. All apartments are available with hydraulic lift system. When the purchase of all 16 residential units turnkey
€ 43,425,000.00
  • Location:
Country:Switzerland
State:Canton of Zug
City:Walchwil
Property Type:Apartment
  • Characteristics
Rooms:3
Living Area (m2):135

2 163 000 €

2 540 582 $
201 845 740 ₽

On the map

Other properties of this seller