The luxury apartment of 105 sq.m with furniture and the parking place in a parking

  • Deal Type
  • For Sell
  • Тype
  • Apartment
  • Area
  • 105 m2
  • Floors
  • 10
  • Rooms
  • 5
year of construction of the house: 2001; 
Objects of sale: the apartment + the parking space in an underground parking 
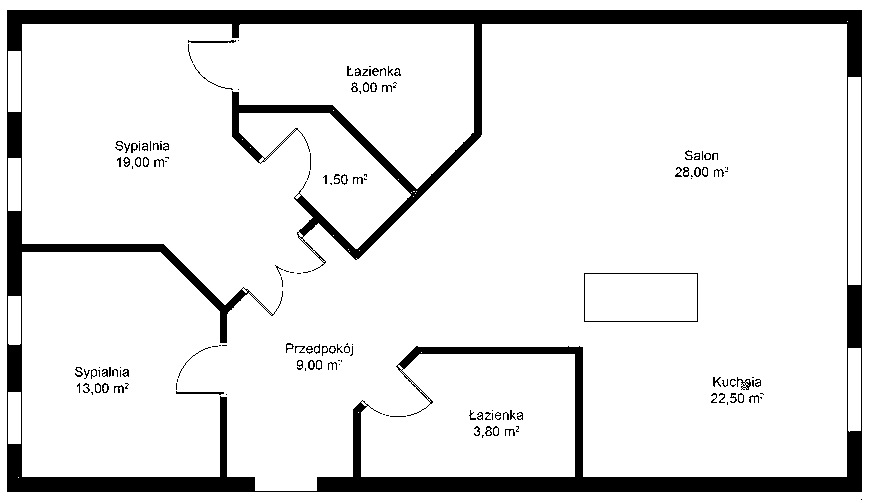
Total area kvartiry:104,7m2 
Etazh/etazhnost:6/10 
inhabited ploshchad:55m2 
Spalni:2 piece, 13+19m2 
Kukhnya:23m2 
Gostinaya:28m2 (the drawing room and kitchen are not divided by a wall) 
Vanna:2 piece, one - with a vertical shower, the second — with an angular bathroom and a case; 
Kladovki:2sht, for motorcycles and for clothes; 
Piece WC:2 
Water supply, heating, kanalizatsiya:tsentralny; 
Bezopasnost:okhranny system, video surveillance; 
Oborudovaniye:polnost the equipped kitchen (Bosh: dishwasher, microwave oven, cooking panels, oven, extract, granite surfaces and пр …); 
Features are otdelki:parkt from valuable breeds of a tree of South America, by original design, Showcase windows, high quality of finishing; 
The Parking:parkovochny place in an underground parking (property right); 
Cost municipal uslug:primerno 900zl/month (256$/month);
  • Location:
Country:Poland
State:Masovian Voivodeship
City:Warsaw
Property Type:Apartment
  • Characteristics
Year of Construction:2001
Rooms:5
Sleeping:2
Number of Kitchens:1
Number of toilets:2
Living Area (m2):55
Total Area (m2):105
  • Facilities
Floor covering:Parquet
Type of Kitchen:Open area kitchen
Bathroom:Tub, Shower
Other Facilities:Pantry, Wardrobe, Room for bikes
Security:Alarm system, CCTV
Equipment:Elevator
Heating:Central
Furniture:Fully
Additional Equipment:Washing machine, Fridge, Cooker, Microwave, Other
Window View:Of the Old Town

333 000 €

391 031 $
29 676 632 ₽

On the map

Other properties of this seller