Commercial real estate for sale in Piacenza, Italy

  • Deal Type
  • For Sell
  • Тype
  • Commercial
  • Area
  • 40000 m2
  • Floors
  • -
  • Rooms
  • 10
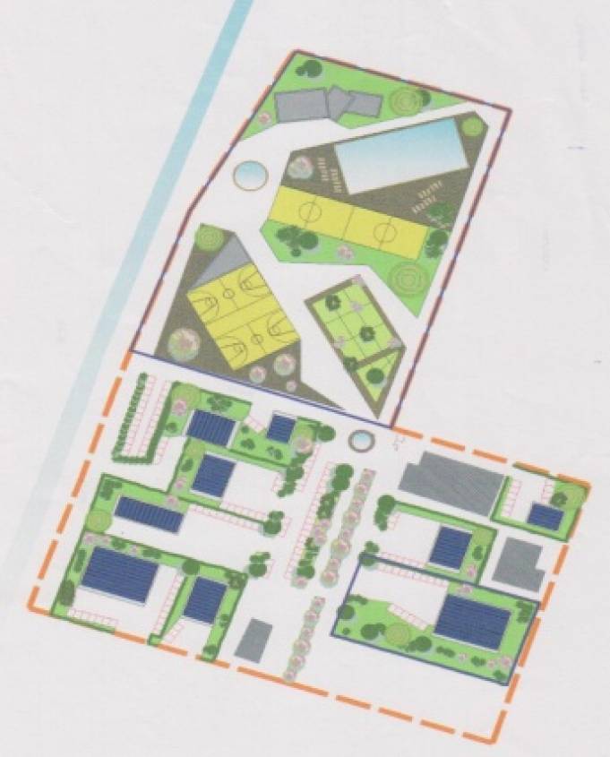
Commercial real estate for sale in Piacenza, a province in Italy, in the Emilia-Romagna region. The property is located in Settima which is part of the Italian municipality of Gossolengo, in the province of Piacenza, in Emilia-Romagna. The construction works of a complex of commercial and industrial premises for sale or lease are underway. The property is located on a large plot of land of 40000sqm + 40000sqm, construction index is 60%. The complex has an advantageous location on the main street of the industrial zone in Settima di Gossolengo PIACENZA, state road 45 (Bobbio Genova). The project is being implemented by prestigious designers and builders for effective operation of industrial buildings, both for a large logistics center and for offices of enterprises in various spheres. The construction uses high-quality materials with innovative technologies. For more information, please contact us.
  • Location:
Country:Italy
State:Emilia-Romagna
City:Piacenza
Property Type:Commercial
  • Characteristics
Rooms:10
Living Area (m2):40000

999 999 €

1 173 234 $
94 460 309 ₽

On the map

Other properties of this seller