House for sale in the suburbs of Prague

  • Deal Type
  • For Sell
  • Тype
  • House
  • Area
  • 345 m2
  • Floors
  • -
  • Rooms
  • 8
House for sale near Prague 6.7, 8 - n. n. Klecany total area of ​​345 m², 800 m² site.

The house has 9 bedrooms, 2 bathrooms, 2 showers, 2 bathrooms, kitchen, pantry, 1 car garage, large sauna, gas heating (boiler), sewage, electricity, fireplace.

Description: This house is in a suburb of Prague. Quick and easy accessibility to the city center - 15-25 minutes by car on the highway to the airport - 30 minutes, at the same time the house is located in a green and quiet area. In addition to local schools, 20 minutes by car - are the best English kindergartens and schools, in Vol. H. American School, as well as the Russian embassy school. Close to many sports clubs, golf, tennis courts, a water park, skating rink, shops, restaurants and beautiful nature.

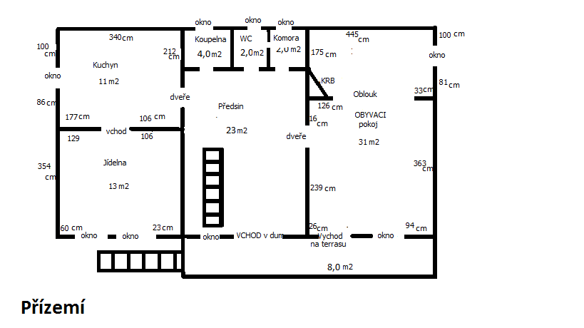
Description of the house: on the ground floor there is a spacious entrance hall, study room / guest bedroom, dressing room, bathroom, toilet. Large living room, dining room and kitchen - has access to the garden. On the second floor there is a spacious living room, 2 bedrooms and 1 bathroom with shower. Garage for one car. Around the house is a well-kept lawn, alpine garden, terrace, ornamental trees and shrubs. 10 km away is the nearest metro station Kobylisy (line C), which is served by the same bus (the stop is a 5-minute walk from the house). The house is located in a green and ecologically clean area, where there are no industrial enterprises. The house is on a hill, 1.5 km from the river Vltava. Along the Vltava River Scenic bicycle paths, which can be reached by bike to the area of Troy, where the Zoo, Botanical Garden, Troja Castle. Then - one of the largest and most beautiful parks in the city - Stomovka. Clean air, quiet, historical monuments and a beautiful view of the neighborhood make the area attractive.

Year built 1989 home in 2010 was made ​​cosmetic repairs.

The house can be used as a guest house.
  • Location:
Country:Czech Republic
State:Prague
City:Prague
Property Type:House
  • Characteristics
Rooms:8
Living Area (m2):345
  • Facilities
Other Facilities:Pantry, Wardrobe, Guest WC
Equipment:Balcony/Terrace
Additional Equipment:Washing machine, Fridge, Cooker, Microwave

250 000 €

293 847 $
23 352 453 ₽

On the map

Other properties of this seller